! Megra d.o.o.

Stan B - Prelog (PRODANO)


Opis nekretnine

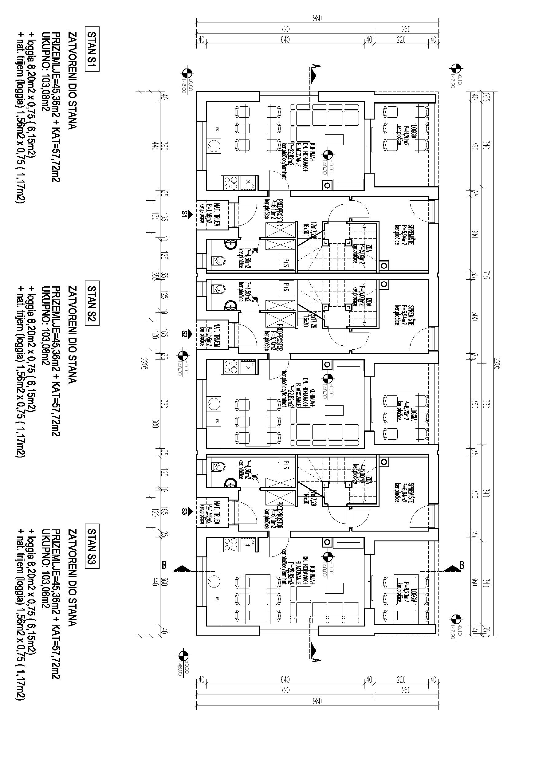
Stan se nalazi u gradu Prelogu na adresi Sajmišna 19, k.č. 1280, k.o. Prelog, 180 metara od centra. Dio je slobodnostojeće zgrade s tri dvoetažne stambene jedinice. Stan se sastoji od prizemlja i kata ukupne neto površine 110,40 m² — prizemlje 45,36 m², kat 57,72 m², loggia 6,15 m² i natkriveni trijem 1,17 m². U prizemlju se nalazi ulazni prostor, wc, kuhinja s blagovaonicom, dnevni boravak i stubište, dok se na katu nalaze tri spavaće sobe, hodnik, kupaonica i garderoba. Stanu pripadaju dva vanjska parkirna mjesta i spremište.

Osnovne informacije

Površina: 110,40 m²

Sobe: 3

Etaže: Prizemlje + Kat

Centar: 180 m

Parkirna mjesta: 2

Spremište: Da

Tehničke karakteristike objekta

Konstrukcija: Nosivi zidovi debljine 25 cm, AB stupovi i grede, FERT polumontažni stropovi

Fasada: Toplinska fasada sa stiroporom debljine 5, 10 i 15 cm; završna obrada u bijeloj i antracit boji

Krov: Ravan krov, nagiba 1–3,15 %, s hidroizolacijskom folijom i parnom branom

Izolacije: Hidroizolacija ispod zidova; podna bitumenska hidroizolacija s elastomernim bitumenom

Stolarija: Antracit PVC izvana, bijela iznutra, troslojno IZO staklo

Zaštita od sunca: Vanjske eslinger rolete za zaštitu od sunca

Završna faza: Objekt se gradi do stupnja srednji roh-bau – uključuje konstrukciju, fasadu, stolariju, krov, hidroizolaciju i pregrade

Instalacije: Priključci za vodu, plin, kanalizaciju i elektro mrežu

Vanjsko uređenje: Asfaltirani pristupi i put; ograda visine 1,60–2,00 m

Tlocrt

Lokacija

Pošaljite upit